YAMAN PREFABRİK ÇELİK YAPI

Tüm dünyadaki mimari trendleri, yapı yönetmeliklerini ve müşteri fikirlerini dikkate alan firmamız prefabrik tek katlı konutlarda standart projeler oluşturduğu gibi müşteri odaklı çalışmasıyla isteğe bağlı projeler de hazırlamaktadır. Gerek bireysel olsun gerek toplu konut çalışması her binaya aynı özen ve hassasiyetle yaklaşan YAMAN PREFABRİK ÇELİK YAPI konut sektöründe adından söz ettiren bir firmadır. Prefabrik evlerde yaşam kalitenizi ve konforunuzu arttırmak için sürekli arge ve ürge çalışmalarımız devam etmektedir.


MODEL KODU : YP 524 Kapadokya


METREKARE : 84 m²

MONTAJ GARANTİSİ

5 YIL

SERVİS GARANTİSİ

10 YIL

ÜCRETSİZ MONTAJ

DÜZCE İLİNDE

FİYAT TEKLİFİNİZİ
NASIL İSTERSİNİZ ?

DETAYLI BİLGİ

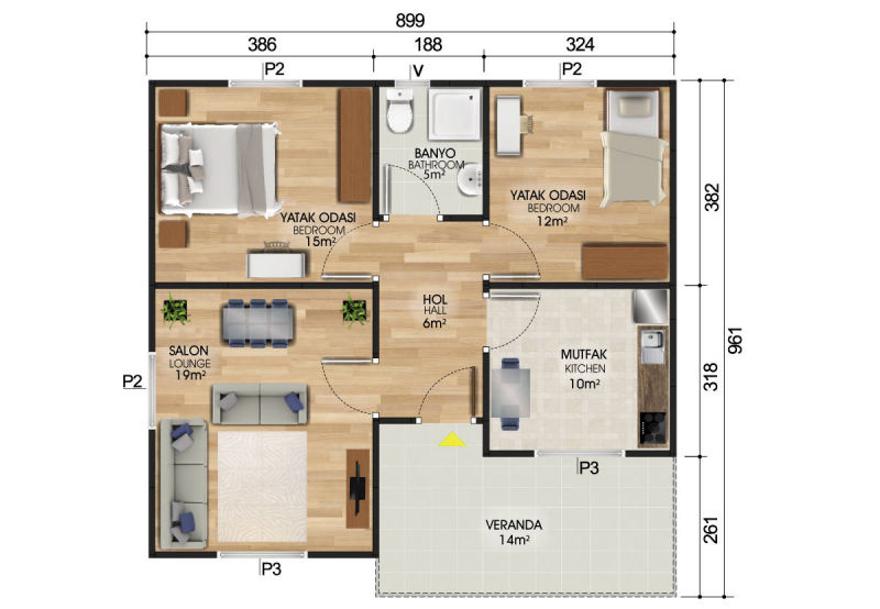
84 m² prefabrik konut 2 + 1 iç planıyla ve geniş bir verandasıyla alıcını bekliyor…

84 m² eviniz sevdiklerinizle hoş vakitler geçirebileceğiniz 14 m² büyüklüğündeki (prefabrik konut) geniş verandası ister mangal keyfinizde sizlere eşlik eder, ister demli bir semaver çayında ailenizle güzel saatler geçirmenize olanak sağlar. 160 X 120 P3 model pencerelerinin ön cephede konumlandırılmış olması da verandanın olduğu bölümde ki 10 m² mutfaktan verandaya pratik servis imkânı sağlamaktadır.

İki adet penceresiyle aydınlık 19 m² bir salonu bulunan evin 14 m² büyük bir odası ve 12 m² de başka bir odası bulunmaktadır. Odaların arasında 5 m² banyo + tuvaleti bir arada göreceksiniz. Yaman Prefabriğin müşterilerine sunduğu fırsatlar 84 m² bu prefabrik konut içinde geçerlidir. Diğer tüm projelerde de olduğu gibi (prefabrik ev) evinizin iç planında, pencerelerinde, kapılarında, dış cephe, iç cephe kaplamalarında, çatısında, boyasında bir prefabrik ev için değişimi mümkün olan tüm alanlarda seçim yapma, değişim hakkına sahipsiniz.

Bilimsel olarak güneş ışınları ruh ve beden sağlığımıza en çok yararlı doğal ışınlardır. Havanın kapalı olduğu bir güne uyandığınızda bedeniniz güneşten yeteri kadar ışın almadığında psikolojik olarak kendinizi mutsuz, huzursuz hissedersiniz. Tam tersini düşünürsek güne güneşin ışıltısıyla uyandığınızı güzel bir havaya (prefabrik konut) günaydın dediğinizi farz edin. Psikolojinizin düzeldiğini daha mutlu ve daha huzurlu olduğunuzu hissedeceksiniz. Bunun nedeni güneşte bizlere mutluluk veren mavi ve mor ışınlar vardır.

Bu ışınlardan yoksun bir ev için atalarımızın ‘’Güneş girmeyen eve doktor girer’’ diye bir atasözü vardır. Bundan dolayı 84 m² prefabrik evinizin güneşten mahrum kalmaması adına ve siz değerli müşterilerimizin bedensel ve ruhsal sağlığı açısından pencerelerini uygun yerlere uygun ölçülere göre yerleştirdik. Prefabrik binanızın konumlanacağı arsanızın güneş ışınını aldığı açılara göre sizlerin uyarılarını dikkate alarak pencerelerindeki değişim bizlerin tarafından yapılmaktadır.

Yaman Prefabrik, prefabrik ev satışı yaparken sizler için her türlü koşulu düşünüp tartarak en doğru kararları sizlerle birlikte alıp, binanın sağlığı için en iyi malzemeleri kullanan Türkiye’nin bu sektörde ki en büyük firmasıdır.

Unutmayın sağlık her şeyden önemlidir…

Alan : 84 m²
Elektrik Tesisatı : Sıva Altı
Köşe Kaplama : Tüm Köşeler İçin Estetik Betopan Köşe Kaplamaları
Pencereler : Kurşunsuz PVC ERPEN
Sıhhi Tesisat : Sıva Altı
Dış Cephe : Düz Betopan (Standart), Ahşap Desen Betopan (Opsiyonel), Kaya Desen Betopan (Opsiyonel), Çizgili Desen Betopan (Opsiyonel)
Oda Sayısı : 3
Bina Yüksekliği : 250 cm (Standart), 280 cm (Opsiyonel)
Banyo Sayısı : 1
İç Duvar : 6 cm
Dış Duvar : 10 cm
Çatı Kaplaması : Boyalı Galveniz Sac, Metal Kiremit(Opsiyonel), Shingle (Opsiyonel )
Kat Sayısı : 1
Dış Kapı : Çelik Kapı
İç Kapı : Amerikan Göbekli Kapı
Balkon Kapısı : PVC Kapı Pakpen

+ Konut İç ve Dış Boya İşlerinin Uygulanması
+ Konut İç ve Dış Kapıların Montajı
+ Konut Pencerelerin Montajı (Çift Cam PVC)
+ Sıva altı elektrik ve su tesisatının çekilmesi
+ Elektrik Armatürlerinin Montajı
+ Konut Malzemelerinin İndirilmesi ve Montajı

- Zemin betonu ve her türlü hafriyat işleri.
- Zemin ve duvar kaplama işleri (şap, seramik, fayans, halı vs.)
- Binanın kurulması için gerekli resmi izinlerin alınması
- Bina ile zemin betonu arasındaki her türlü yalıtım işleri.
- Telefon, bilgisayar ve UPS tesisatları.
- Elektrik ana dağıtımı ve her türlü topraklama hattı.
- Elektrik ve Su Sayacı
- Bina harici dış bağlantılar.(Elektrik, Pissu ve Temiz su vs.)
- Isıtma ve soğutma tesisatları (Kalorifer, klima vs.)
- Mutfak alt üst dolapları ve banyo dolapları
- Duş Teknesi, Klozet, Lavabo ve Bataryaların Paket Halinde Müşteriye Verilmesi
- Nakliye ve nakliye sigortası müşteriye aittir.
- Düzce dışı montajlarda montaj ekibinin konaklama ve yemek ihtiyacı alıcıya aittir.

Bizi Sosyal Medyada Önerin