YAMAN PREFABRİK ÇELİK YAPI

Tüm dünyadaki mimari trendleri, yapı yönetmeliklerini ve müşteri fikirlerini dikkate alan firmamız prefabrik tek katlı konutlarda standart projeler oluşturduğu gibi müşteri odaklı çalışmasıyla isteğe bağlı projeler de hazırlamaktadır. Gerek bireysel olsun gerek toplu konut çalışması her binaya aynı özen ve hassasiyetle yaklaşan YAMAN PREFABRİK ÇELİK YAPI konut sektöründe adından söz ettiren bir firmadır. Prefabrik evlerde yaşam kalitenizi ve konforunuzu arttırmak için sürekli arge ve ürge çalışmalarımız devam etmektedir.


MODEL KODU : YP 529 Ürgüp


METREKARE : 112 m²

MONTAJ GARANTİSİ

5 YIL

SERVİS GARANTİSİ

10 YIL

ÜCRETSİZ MONTAJ

DÜZCE İLİNDE

FİYAT TEKLİFİNİZİ
NASIL İSTERSİNİZ ?

DETAYLI BİLGİ

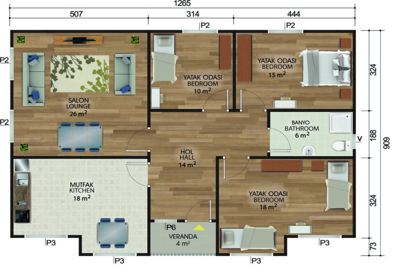
112 m² tek katlı prefabrik konut 3 + 1 formuyla geniş ailelere nefes aldıran bir projedir.

Yaman Prefabriğin ayrıcalıklı projelerinden biri olan 112 m² prefabrik konut bir evde genişlik, ferah bir hava arıyor ise düşünebilecekleri en güzel projelerden biridir. Oda tasarımları olsun dış görsel estetiği olsun bir bakana bir daha baktıran ilgi çekici prefabrik konutunuz dilediğiniz yere üretim tesislerinde hazırlanıp gönderilmektedir.

2 m² giriş kapısında ki verandadan giriş ve çıkışlar sağlanmaktadır. Girişin sağında 18 m² olmak üzere bir oda, solunda ise yine aynı şekilde 18 m² alana sahip bir mutfak bulunmaktadır. 14 m² büyüklüğündeki holünüz evinizin oda bağlantılarını sağlamaktadır. Mutfağın arka bölümünde ki 26 m² gayet kullanışlı bir salon ve salonun yanına konumlanmış biri 10 m², diğeri 15 m² iki oda bulunmaktadır.

‘’Biz prefabrik evleri sadece yazın kullanılır diye biliyoruz’’ HAYIR. Yaman Prefabrik geçmişten bugüne kendisine kattığı yenilikler ve sektörün gelişimi (prefabrik konut) için gösterdiği çaba sayesinde günümüzde artık sadece yazın değil kışın da örneğin Türkiye’nin en soğuk bölgeleri olarak açıklanan Ardahan, Ağrı, Kars, Erzurum, Sivas gibi illerde de hiçbir problem yaşamadan gönül rahatlığıyla ve huzuruyla oturabileceğiniz prefabrik evler üretiyor.

Prefabrik evlerinizin duvarlarında kullanılan çimentolu levha yonga (betopan), normal bir betonarme eve kıyasla (prefabrik konut) iki kat daha fazla ısı izolasyonu sağlamaktadır. Aynı zamanda çatılarınızda kış bölgeleri olarak adlandırdığımız doğu illerinde % 45 bir çatı eğimi kullanılarak daha dik bir çatı oluşturulur ve fazla olan kar yükünün çatınızda kalması engellenmiş olur.

Ayrıca ısınmada soba veya kaloriferin kurulup kurulmadığını merak edenler içinde cevap niteliğinde olsun bir betonarme evde nasıl ısınılıyorsa prefabrik evlerde de aynı şekilde ısınabilirsiniz ister kalorifer bağlatın ister soba kurun prefabrik açısından bir sakınca yoktur. Tek fark soba kurulumunda (prefabrik konut) baca deliği duvardan açılarak çatıdan değil duvardan dumanın çıkması sağlanmalıdır. Bununla alakalı da soba için uygun gördüğünüz yeri montaja gelen arkadaşlara bildiriyorsunuz onlar yanlarında getirdiği soba aparatıyla istediğiniz yere duvardan soba deliği açıyorlar.

Bu sebeple kafanızda hiçbir soru işareti kalmadan Yaman Prefabriğin diğer tüm projeleri gibi 112 m² prefabrik evinde de yaz kış dört mevsim kendinizi güvende hissederek oturabilirsiniz.    

Alan : 112 m²
Elektrik Tesisatı : Sıva Altı
Köşe Kaplama : Tüm Köşeler İçin Estetik Betopan Köşe Kaplamaları
Pencereler : Kurşunsuz PVC ERPEN
Sıhhi Tesisat : Sıva Altı
Dış Cephe : Düz Betopan (Standart), Ahşap Desen Betopan (Opsiyonel), Kaya Desen Betopan (Opsiyonel), Çizgili Desen Betopan (Opsiyonel)
Oda Sayısı : 3
Bina Yüksekliği : 250 cm (Standart), 280 cm (Opsiyonel)
Banyo Sayısı : 1
İç Duvar : 6 cm
Dış Duvar : 10 cm
Çatı Kaplaması : Boyalı Galveniz Sac, Metal Kiremit(Opsiyonel), Shingle (Opsiyonel )
Kat Sayısı : 1
Dış Kapı : Çelik Kapı
İç Kapı : Amerikan Göbekli Kapı
Balkon Kapısı : PVC Kapı PAKPEN

+ Konut İç ve Dış Boya İşlerinin Uygulanması
+ Konut İç ve Dış Kapıların Montajı
+ Konut Pencerelerin Montajı (Çift Cam PVC)
+ Sıva altı elektrik ve su tesisatının çekilmesi
+ Elektrik Armatürlerinin Montajı
+ Konut Malzemelerinin İndirilmesi ve Montajı

- Zemin betonu ve her türlü hafriyat işleri.
- Zemin ve duvar kaplama işleri (şap, seramik, fayans, halı vs.)
- Binanın kurulması için gerekli resmi izinlerin alınması
- Bina ile zemin betonu arasındaki her türlü yalıtım işleri.
- Telefon, bilgisayar ve UPS tesisatları.
- Elektrik ana dağıtımı ve her türlü topraklama hattı.
- Elektrik ve Su Sayacı
- Bina harici dış bağlantılar.(Elektrik, Pissu ve Temiz su vs.)
- Isıtma ve soğutma tesisatları (Kalorifer, klima vs.)
- Mutfak alt üst dolapları ve banyo dolapları
- Duş Teknesi, Klozet, Lavabo ve Bataryaların Paket Halinde Müşteriye Verilmesi
- Nakliye ve nakliye sigortası müşteriye aittir.
- Düzce dışı montajlarda montaj ekibinin konaklama ve yemek ihtiyacı alıcıya aittir.

Bizi Sosyal Medyada Önerin