YAMAN PREFABRİK ÇELİK YAPI

Tüm dünyadaki mimari trendleri, yapı yönetmeliklerini ve müşteri fikirlerini dikkate alan firmamız prefabrik tek katlı konutlarda standart projeler oluşturduğu gibi müşteri odaklı çalışmasıyla isteğe bağlı projeler de hazırlamaktadır. Gerek bireysel olsun gerek toplu konut çalışması her binaya aynı özen ve hassasiyetle yaklaşan YAMAN PREFABRİK ÇELİK YAPI konut sektöründe adından söz ettiren bir firmadır. Prefabrik evlerde yaşam kalitenizi ve konforunuzu arttırmak için sürekli arge ve ürge çalışmalarımız devam etmektedir.


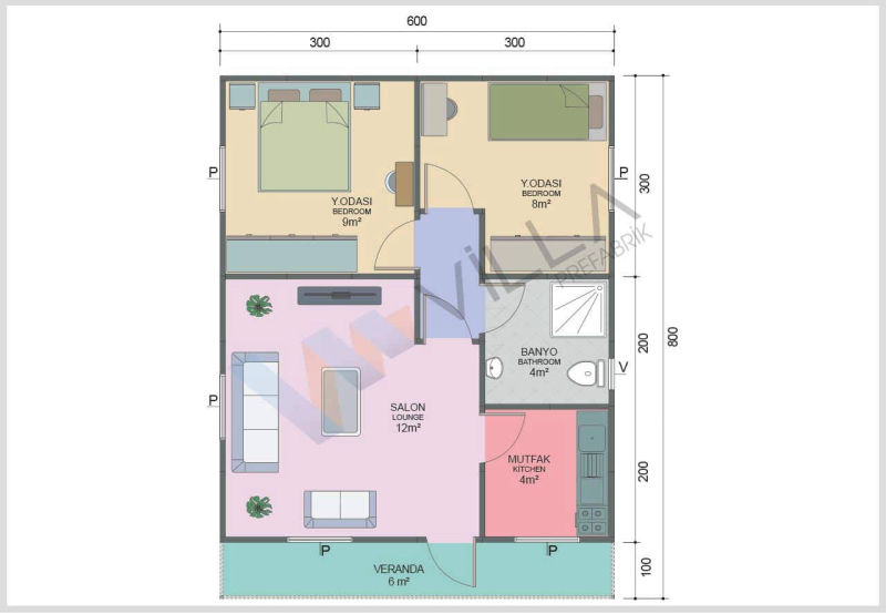
MODEL KODU : VKP 1 


METREKARE : 21 m²

MONTAJ GARANTİSİ

??? YIL

SERVİS GARANTİSİ

??? YIL

ÜCRETSİZ MONTAJ

DÜZCE İLİNDE

FİYAT TEKLİFİNİZİ
NASIL İSTERSİNİZ ?

DETAYLI BİLGİ

Konteyner Ev 21 m² evlerin kullanımları farklılık göstermektedir.

Konteyner Ev 21 m² evler aynı zaman da gecekondu evlere de benzerlik göstermektedir. Konteyner Ev 21 m²prefabrik evler sökülüp tekrar farklı bir yere kurulabilmektedir. Prefabrik evlerin sökülüp tekrar farklı bir yere kurulmasında sadece sizlere belli maliyetler getirmektedir. Bu maliyetler sökme maliyeti, yeniden bir montaj maliyeti, boya maliyeti ve tesisat maliyeti gibi maliyetlere neden olmaktadır. Eğer prefabrik evinizde bir tadilata gereksinim duyarsanız o zaman tadilat işlemleri de yapılmaktadır. Bu prefabrik yapıların sökülememesinin nedeni ise sabit ve kalıcı olarak yapılmış olmalarıdır. Bu prefabrik yapıların dışında kalan bütün yapılar sökülebilmekte ve başka bir yere tekrardan kurulabilmektedir. Böyle bir durumun yapılması gerekir ise prefabrik eviniz sökülüp tekrardan sizin istediğiniz bir yere monte edilmektedir. Bu durum da sökme işleminden kalan maliyet, yeniden monte edilmesinden doğan montaj maliyeti ve evin boyanmasından dolayı oluşan boya maliyeti kişinin kendisine ait olmaktadır. Eğer bir tadilat yapılmasını isterseniz tadilat işlemleri de mümkün bulunmaktadır. Prefabrik evi yaptıran herkesin en çok tereddüt konudur. Başka bir yere taşınırsam evimi de söktürüp tekrardan montaj yaptırabilir miyim diye. Ancak düşünmenize ya da tereddüt etmenize hiç gerek bulunmamaktadır. Çünkü başka bir yere taşınmak istediğiniz anda evinizden ayrılmanıza gerek kalmamaktadır. Evinizde sizinle birlikte taşınmaktadır. Bu durum aslında prefabrik evlerin ömürlük olduğunun bir başka göstergesidir. Size düşen sadece taşınmak istediğiniz yeri bulmak ve evinizin taşınması isteğinde bulunmanızdır. Çünkü siz istedikten sonra prefabrik eviniz de sizinle birlikte gelmek de ve istediğiniz yere monte edilebilmektedir. Bazen Konteyner Ev 21 m² evler sökülmeden taşınabilme imkanı olur ise o zaman taşınabileceği araç geldikten sonra sökülmeden Konteyner Ev 21 m² evin taşınma olayı yapılabilmektedir.

Konteyner Ev 21 m² evleri isterseniz işçiler için ya da kullanabileceğiniz herhangi bir alan var ise kolaylıkla tercih edebilir ve kullanabilirsiniz. Üstelik Konteyner Ev 21 m² evlerin başka bir yere taşınma işlemi de kolay bir şekilde yapılmaktadır.

Alt Taşıma Konstrüksiyonu : 1.5 mm Kalınlığında özel form verilmiş galvaniz “C” kullanılarak kontrüksiyon oluşturulur.
Üst Taşıma Kontrüksiyonu : 1.5 mm Kalınlığında özel form verilmiş galvaniz “C” kullanılarak kontrüksiyon oluşturulur.
Alt Şase : 2 mm Kalınlığında özel form verilmiş galvaniz kullanılarak konstrüksiyon oluşturulur.
Üst Şase : 2 mm Kalınlığında özel form verilmiş galvaniz kullanılarak kontrüksiyon oluşturulur.
Köşe Direkleri : 3 mm Kalınlığında özel form verilmiş galvaniz kullanılarak kontrüksiyon oluşturulur.
Dış Duvarlar : 0,50 mm kalınlığında, mikro lambri baskı, boyalı galvaniz sac arası 40 mm kalınlığında 16kg/m3 yoğunluğunda polistren köpük kullanılır.
İç Duvarlar : 0,50 mm kalınlığında, mikro lambri baskı, boyalı galvaniz sac arası 40 mm kalınlığında 16kg/m3 yoğunluğunda polistren köpük kullanılır.
İç Yüzey Tavan Kaplama : 10mm Beyaz, yüksek kalitede Pvc lambri kullanılır.
Zemin Kaplama : 16 mm Kalınlığında betopan levha üzerine 2 mm kalınlığında PVC mİneflo.
Çatı İzolasyon : 80mm 14 kg/m3 Kalınlığında şilte cam yünü kullanılır.
Çatı Kaplama : 0.50mm kalınlığında natural galvaniz trapez sac kullanılır.
İç Kapılar : 80 x 198 ebatında olup,kanatları çift taraflı mdf kapıdır.
Pencereler : 95 / 100 Ölçülerinde PVC Pencere
Menfez : (WC ve Banyo ünitelerinde, havalandırma maksatlı 30×20 cm ebatlarında kullanılır.

Bizi Sosyal Medyada Önerin